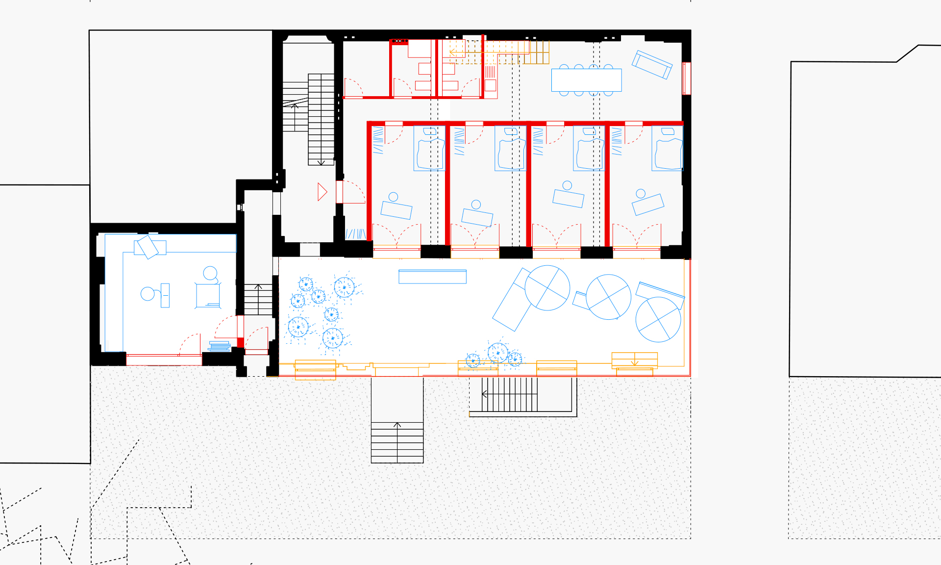
Die Studie untersucht, wie das leerstehende Gebäude aktiviert, instandgesetzt und wieder einer Nutzung zugeführt werden kann. Die methodische Herangehensweise umfasst eine bauliche Bestandsanalyse, eine soziale Umfeldbetrachtung sowie die Entwicklung möglicher Nutzungsszenarien, die aus den vorhergehenden Analysen hergeleitet werden. Dabei stellt sich die zentrale Frage, welche Funktionen sich für das Gebäude eignen, ohne dessen bauliche Substanz und räumliche Charakteristik stark zu verändern. Im Vordergrund steht die Strategie des kleinstmöglichen Eingriffs – einer ressourcenschonenden Herangehensweise im Umgang mit Bestandsgebäuden. Ausgehend von dieser Prämisse, sowie den untersuchten Rahmenbedingungen wurden drei Nutzungsszenarien entwickelt: Weiterentwicklung der Jugendnutzung und Öffnung in die Nachbarschaft als „Jugendkulturhaus“, eine Umnutzung in ein Wohnhaus und Eine Variante die Wohnn- und Soziokulturnutzungen kombiniert.
Das Gebäude in der Ahornstraße steht seit 2015 leer. Es wurde 1891 als Gastwirtschaft errichtet und prägte über Jahrzehnte hinweg das gesellschaftliche Leben im Stadtteil Steglitz. Unter dem Namen „Schellhase“ war das Lokal ein politisches Zentrum der SPD. 1934 wurde die Gaststätte von Rudolf Breitenfeld erworben und in „Ahornschlösschen“ umbenannt. Sie wurde fortan als Treffpunkt der NSDAP genutzt und diente als Austragungsort für Parteiversammlungen und Propagandaveranstaltungen. Zwischen 1946 und 1957 war es Sitz der Großen National-Mutterloge „Zu den drei Weltkugeln“, einer der bedeutendsten Freimaurerlogen in Deutschland
Im Anschluss wurde das Gebäude von der Berliner Senatsverwaltung für Jugend erworben, die das Gebäude in eine »Tanz- und jugendpflegerische Unterhaltungseinrichtung« umwandelte. In den 1960er-Jahren entwickelte sich die Einrichtung zu einem der zentralen Jugendkulturorte West-Berlins. Zunächst unter dem Namen „Jazz-Saloon“ geführt, wurde sie 1967 in „Pop Inn“ umbenannt. Über Jahrzehnte hinweg blieb das Pop Inn ein fester Bestandteil der Berliner Musik- und Jugendkultur.
| Cookie | Dauer | Beschreibung |
|---|---|---|
| cookielawinfo-checkbox-analytics | 11 months | This cookie is set by GDPR Cookie Consent plugin. The cookie is used to store the user consent for the cookies in the category "Analytics". |
| cookielawinfo-checkbox-functional | 11 months | The cookie is set by GDPR cookie consent to record the user consent for the cookies in the category "Functional". |
| cookielawinfo-checkbox-necessary | 11 months | This cookie is set by GDPR Cookie Consent plugin. The cookies is used to store the user consent for the cookies in the category "Necessary". |
| cookielawinfo-checkbox-others | 11 months | This cookie is set by GDPR Cookie Consent plugin. The cookie is used to store the user consent for the cookies in the category "Other. |
| cookielawinfo-checkbox-performance | 11 months | This cookie is set by GDPR Cookie Consent plugin. The cookie is used to store the user consent for the cookies in the category "Performance". |
| viewed_cookie_policy | 11 months | The cookie is set by the GDPR Cookie Consent plugin and is used to store whether or not user has consented to the use of cookies. It does not store any personal data. |